兰可琪绘本美术生活馆_天猫乐器体验馆北京馆_北京美术馆

北京美术馆_天猫乐器体验馆北京馆_兰可琪绘本美术生活馆

美术馆外观©金伟琦

X美术馆旨在成为北京年轻一代的新文化场所。当代艺术正在我们这个信息爆炸且相互交织的时代中持续发展。面对各种不确定的因素,应当如何去塑造我们的文化空间?

兰可琪绘本美术生活馆_天猫乐器体验馆北京馆_北京美术馆

美术馆入口©金伟琦

以“如何将艺术品悬挂在墙上”这一最基本的问题为出发点北京美术馆,TEMP重新思考了艺术空间的可能形态。借助定制的赤陶砖构件,金属材质的夹子得以被置入墙壁的缝隙,使绘画、装置、投影仪甚至白色墙壁都可以被悬挂在这个墙面系统上。这种做法使得X美术馆超越了寻常的白色方盒子空间,为观者带来一种全新的布置和展示艺术品的方式。

兰可琪绘本美术生活馆_北京美术馆_天猫乐器体验馆北京馆

天猫乐器体验馆北京馆_北京美术馆_兰可琪绘本美术生活馆

展厅概览©金伟琦

兰可琪绘本美术生活馆_北京美术馆_天猫乐器体验馆北京馆

墙面系统示意©TEMP

天猫乐器体验馆北京馆_兰可琪绘本美术生活馆_北京美术馆

借助定制的赤陶砖构件,金属材质的夹子得以被置入墙壁的缝隙©金伟琦

天猫乐器体验馆北京馆_北京美术馆_兰可琪绘本美术生活馆

兰可琪绘本美术生活馆_北京美术馆_天猫乐器体验馆北京馆

北京美术馆_天猫乐器体验馆北京馆_兰可琪绘本美术生活馆

兰可琪绘本美术生活馆_天猫乐器体验馆北京馆_北京美术馆

兰可琪绘本美术生活馆_天猫乐器体验馆北京馆_北京美术馆

墙面系统细节©金伟琦

北京美术馆_天猫乐器体验馆北京馆_兰可琪绘本美术生活馆

展厅©金伟琦

北京美术馆_兰可琪绘本美术生活馆_天猫乐器体验馆北京馆

大堂©金伟琦

X字母也被用作美术馆的主要标志中创网,在入口处呈现为两根相交的H形结构柱,为宽阔的弧形屋顶提供了支撑。屋顶表面上的穿孔能够滤过光线,在入口空间投下光影。由两条线组成的“X”图形还寓意着最基本的交互形式,与美术馆在多学科方面的努力形成呼应:除了艺术家之外,X美术馆还展示来自建筑师、科学家、工程师、音乐家和设计师的作品。

兰可琪绘本美术生活馆_北京美术馆_天猫乐器体验馆北京馆

X字母在入口处呈现为两根相交的H形结构柱©金伟琦

北京美术馆_天猫乐器体验馆北京馆_兰可琪绘本美术生活馆

檐下空间©金伟琦

兰可琪绘本美术生活馆_北京美术馆_天猫乐器体验馆北京馆

弧形屋顶表面上的穿孔在入口空间投下光影©金伟琦

北京美术馆_天猫乐器体验馆北京馆_兰可琪绘本美术生活馆

美术馆的南立面覆盖着由54个灯箱构成的矩阵。这些突出的方形结构在灰泥墙面上投下整齐的阴影,并会根据太阳的位置发生角度和长度的变化。到了夜里,嵌入结构内的射灯将点亮外墙,创造全新的光影图案。同时,这些结构也可以用来悬挂巨幅海报或用于各类美术馆活动的宣传。

美术馆南立面©金伟琦

兰可琪绘本美术生活馆_北京美术馆_天猫乐器体验馆北京馆

54个灯箱内部置入了射灯©金伟琦

天猫乐器体验馆北京馆_兰可琪绘本美术生活馆_北京美术馆

X美术馆是一个鼓励创新和激发未知可能性的艺术空间,它的设计向人们展示并例证了一种新的当代美术馆范式。对于将北京作为活动中心的各个领域的创意人而言,X美术馆将成为一个独一无二且富有凝聚力的场所。

兰可琪绘本美术生活馆_天猫乐器体验馆北京馆_北京美术馆

天猫乐器体验馆北京馆_北京美术馆_兰可琪绘本美术生活馆

一个鼓励创新和激发未知可能性的艺术空间©金伟琦

北京美术馆_天猫乐器体验馆北京馆_兰可琪绘本美术生活馆

北京美术馆_兰可琪绘本美术生活馆_天猫乐器体验馆北京馆

兰可琪绘本美术生活馆_北京美术馆_天猫乐器体验馆北京馆

模型©TEMP

北京美术馆_兰可琪绘本美术生活馆_天猫乐器体验馆北京馆

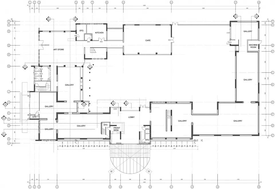
一层平面图©TEMP

二层平面图©TEMP

项目信息:

建筑师:TEMP

地址:国际艺术金融示范区11号楼,崔各庄北京美术馆,朝阳区,北京,中国

项目年份:2020

建筑面积:2600平方米

主创建筑师: 金智虎

摄影师: 金伟琦

设计团队: 谢骞逸,蔡振昆

照明顾问: RDI 上海

项目投稿邮箱:457606417@qq.com

广告&商务合作:15914310552(微信同手机)

喜欢这篇文章请点击“在看”| 把本号分享给你的朋友 |欢迎留言投稿交流|微博@ZaomeDesign

发表回复

您的电子邮箱地址不会被公开。 必填项已用*标注