一、结构施工图绘制比例

结构施工图的绘图比例是根据图样的用途、被绘物体的复杂程度进行选取的,一般选用表2-1中的常用比例,特殊情况下也可选用可用比例。

钢筋型号规格及代号字母_钢筋网片的规格和型号_钢筋的代号

二、构件代号

建筑结构构件种类繁多,布置复杂,为图示简明、清晰,便于施工、查阅,有必要对各类结构构件用代号标识,代号后应用阿拉伯数字标注该构件的型号或编号,也可为构件的顺序号。构件的顺序号采用不带角标的阿拉伯数字连续编排。常用的构件代号见表2-2。构件代号通常为构件类型名称的汉语拼音的第一个字母,如梁的代号为“L”,另外,预应力钢筋混凝土构件的代号在构件代号前加注“Y—”。如Y—KZL是预应力钢筋混凝土框支梁,Y—DL表示预应力钢筋混凝土吊车梁。有时在构件代号前加注材料代号,以标明构件的材料种类,具体可见图纸中的具体说明。

钢筋网片的规格和型号_钢筋型号规格及代号字母_钢筋的代号

当构件的纵、横向断面尺寸相差悬殊时,可在同一详图中的纵、横向选用不同的比例绘制。轴线尺寸与构件尺寸也可选用不同的比例绘制。

当采用标准、通用图集中的构件时,应用该图集中的规定代号或型号注写。

三、结构图的平面、节点表达方法

结构图应采用正投影法绘制,图7-1和图7-2分别是用正投影法绘制的结构平面图和节点详图。特殊情况下也可采用仰视投影绘制。

钢筋的代号_钢筋网片的规格和型号_钢筋型号规格及代号字母

钢筋型号规格及代号字母_钢筋网片的规格和型号_钢筋的代号

四、构件图线

在结构平面图中,构件应采用轮廓线表示,如能用单线表示清楚时,也可用单线表示。在杆件布置和受力均对称的桁架单线图中,若需要时可在桁架的左半部分标注杆件的几何轴线尺寸,右半部分标注杆件的内力值和反力值;非对称的桁架单线图,可在上方标注杆件的几何轴线尺寸,下方标注杆件的内力值和反力值。竖杆的几何轴线尺寸可标注在左侧,内力值标注在右侧。

另外,结构施工图中的定位轴线与建筑平面图或总平面图是一致的,结构施工图中标注的标高均为结构标高。

五、详图编号顺序

结构平面图中的剖面图、断面详图的编号顺序宜按下列规定编排(图7-3):

(1)外墙按顺时针方向从左下角开始编号。

(2)内横墙从左至右,从上至下编号。

(3)内纵墙从上至下,从左至右编号。

钢筋网片的规格和型号_钢筋型号规格及代号字母_钢筋的代号

一、钢筋的一般表示方法

(1)普通钢筋的一般表示方法应符合表3-1的规定。预应力钢筋的表示方法应符合表3-2的规定。钢筋网片的表示方法应符合表7-6的规定。钢筋的焊接接头的表示方法应符合表3-4的规定。

钢筋网片的规格和型号_钢筋的代号_钢筋型号规格及代号字母

钢筋型号规格及代号字母_钢筋的代号_钢筋网片的规格和型号

钢筋的代号_钢筋网片的规格和型号_钢筋型号规格及代号字母

钢筋的代号_钢筋网片的规格和型号_钢筋型号规格及代号字母

(2)钢筋的画法应符合表3-5的规定。

钢筋型号规格及代号字母_钢筋网片的规格和型号_钢筋的代号

(3)钢筋、钢丝束及钢筋网片应按下列规定进行标注:

1)钢筋、钢丝束的说明应给出钢筋的代号、直径、数量、间距、编号及所在位置,其说明应沿钢筋的长度标注或标注在相关钢筋的引出线上。

2)钢筋网片的编号应标注在对角线上。网片的数量应与网片的编号标注在一起。

3)钢筋、杆件等编号的直径宜采用5mm~6mm的细实线圆表示,其编号应采用阿拉伯数字按顺序编写。

注:简单的构件、钢筋种类较少可不编号。

(4)钢筋在平面、立面、剖(断)面中的表示方法应符合下列规定:

1)钢筋在平面图中的配置应按图3-6所示的方法表示。当钢筋标注的位置不够时,可采用引出线标注。引出线标注钢筋的斜短划线应为中实线或细实线。

2)当构件布置较简单时,结构平面布置图可与板配筋平面图合并绘制。

钢筋网片的规格和型号_钢筋的代号_钢筋型号规格及代号字母

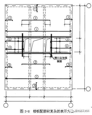
3)平面图中的钢筋配置较复杂时,可按表3-7及图3-8的方法绘制。

钢筋的代号_钢筋型号规格及代号字母_钢筋网片的规格和型号

4)钢筋在梁纵、横断面图中的配置,应按图3-9所示的方法表示。

钢筋的代号_钢筋网片的规格和型号_钢筋型号规格及代号字母

(5)构件配筋图中箍筋的长度尺寸,应指箍筋的里皮尺寸。

弯起钢筋的高度尺寸应指钢筋的外皮尺寸(图3-10)。

钢筋的代号_钢筋网片的规格和型号_钢筋型号规格及代号字母

二、钢筋的简化表示方法

(1)当构件对称时,采用详图绘制构件中的钢筋网片可按图3-7的方法用一半或1/4表示。

钢筋型号规格及代号字母_钢筋网片的规格和型号_钢筋的代号

(2)钢筋混凝土构件配筋较简单时,宜按下列规定绘制配筋平面图:

1)独立基础宜按图3-11(a)的规定在平面模板图左下角,绘出波浪线,绘出钢筋并标注钢筋的直径、间距等。

2)其他构件宜按图3-11(b)的规定在某一部位绘出波浪线,绘出钢筋并标注钢筋的直径、间距等。

钢筋型号规格及代号字母_钢筋网片的规格和型号_钢筋的代号

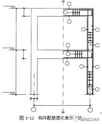
(3)对称的混凝土构件,宜按图3-12的规定在同一图样中一半表示模板,另一半表示配筋。

钢筋网片的规格和型号_钢筋的代号_钢筋型号规格及代号字母

三、文字注写构件的表示方法

(1)在现浇混凝土结构中,构件的截面和配筋等数值可采用文字注写方式表达。

(2)按结构层绘制的平面布置图中,直接用文字表达各类构件的编号(编号中含有构件的类型代号和顺序号)、断面尺寸、配筋及有关数值。

(3)混凝土柱可采用列表注写和在平面布置图中截面注写方式,并应符合下列规定:

1)列表注写应包括柱的编号、各段的起止标高、断面尺寸、配筋、断面形状和箍筋的类型等有关内容。

2)截面注写可在平面布置图中,选择同一编号的柱截面,直接在截面中引出断面尺寸、配筋的具体数值等,并应绘制柱的起止高度表。

(4)混凝土剪力墙可采用列表和截面注写方式,并应符合下列规定:

1)列表注写分别在剪力墙柱表、剪力墙身表及剪力墙梁表中,按编号绘制截面配筋图并注写断面尺寸和配筋等。

2)截面注写可在平面布置图中按编号,直接在墙柱、墙身和墙梁上注写断面尺寸、配筋等具体数值的内容。

(5)混凝土梁可采用在平面布置图中的平面注写和截面注写方式,并应符合下列规定:

1)平面注写可在梁平面布置图中,分别在不同编号的梁中选择一个,直接注写编号、断面尺寸、跨数、配筋的具体数值和相对高差(无高差可不注写)等内容。

2)截面注写可在平面布置图中,分别在不同编号的梁中选择一个,用剖面号引出截面图形并在其上注写断面尺寸、配筋的具体数值等。

(6)重要构件或较复杂的构件,不宜采用文字注写方式表达构件的截面尺寸和配筋等有关数值,宜采用绘制构件详图的表示方法。

(7)基础、楼梯、地下室结构等其他构件钢筋型号规格及代号字母,当采用文字注写方式绘制图纸时,可采用在平面布置图上直接注写有关具体数值,也可采用列表注写的方式。

(8)采用文字注写构件的尺寸、配筋等数值的图样,应绘制相应的节点做法及标准构造详图。

四、预埋件、预留孔洞的表示方法

(1)在混凝土构件上设置预埋件时,可按图3-13的规定在平面图或立面图上表示。引出线指向预埋件,并标注预埋件的代号。

钢筋型号规格及代号字母_钢筋网片的规格和型号_钢筋的代号

(2)在混凝土构件的正、反面同一位置均设置相同的预埋件时,可按图3-14的规定引出线为一条实线和一条虚线并指向预埋件,同时在引出横线上标注预埋件的数量及代号。

钢筋的代号_钢筋网片的规格和型号_钢筋型号规格及代号字母

(3)在混凝土构件的正、反面同一位置设置编号不同的预埋件时,可按图3-15的规定引一条实线和一条虚线并指向预埋件。引出横线上标注正面预埋件代号,引出横线下标注反面预埋件代号。

钢筋的代号_钢筋网片的规格和型号_钢筋型号规格及代号字母

(4)在构件上设置预留孔、洞或预埋套管时,可按图3-16的规定在平面或断面图中表示。引出线指向预留(埋)位置,引出横线上方标注预留孔、洞的尺寸,预埋套管的外径。横线下方标注孔、洞(套管)的中心标高或底标高。

钢筋型号规格及代号字母_钢筋的代号_钢筋网片的规格和型号

五、钢筋混凝土结构图内容

用来表示钢筋混凝土结构的外部形状和内部钢筋配置情况的图样,称为钢筋混凝土结构图,简称钢筋图。

钢筋混凝土结构图是加工钢筋和浇筑钢筋混凝土构件施工的依据钢筋型号规格及代号字母项目加盟,包括结构平面布置图和构件详图。

1.结构平面布置图

结构平面布置图表示承重构件的类型、布置和数量或现浇钢筋混凝土板的钢筋配置情况。

2.构件详图

构件详图分为配筋图、模板图、预埋件详图及材料用量表等。配筋图包括立面图、断面图和钢筋详图。其着重表示构件内部的钢筋配置、形状、数量和规格,是构件详图的主要图样。模板图是表示构件外形和预埋件位置的图样,图中标注构件的外形尺寸(也称模板尺寸)和预埋件型号及其定位尺寸,它是制作每件模板和安装预埋件的依据。对于外形比较简单,又无预埋件的构件,因在配筋图中已标注出构件的外形尺寸,可不再画模板图。

发表回复

您的电子邮箱地址不会被公开。 必填项已用*标注