现浇钢筋混凝土楼板多少钱一平方_现浇楼板一平方多少钢筋_现浇钢筋混凝土楼板多少钱一方

在大部分人的印象中,混凝土外表硬的像一块石头,它可以抵挡外物的猛烈撞击而安然无恙。然而,事实也不尽如此。由于原材料、制作工艺等方面的限制,混凝土内部存在大量的微裂缝及不均匀性,内部结构显得极端复杂化,相比钢材甚至木材,它都在某些方面相当脆弱。这些,都是因为混凝土的“脆”。

现浇钢筋混凝土楼板多少钱一方_现浇钢筋混凝土楼板多少钱一平方_现浇楼板一平方多少钢筋

我们所说的对混凝土楼板进行加固,通常是在下列情况下进行的:

1.前期设计或施工阶段出错,导致混凝土楼板不能达到预期使用条件;

2.使用过程中钢筋锈蚀严重,楼板承载力不足;

3.使用过程中混凝土产生裂缝,致使楼板承载力降低;

4.后期改变建筑用途,加大使用荷载。

对于上述原因引起的混凝土楼板病害,加固方法有很多种。

首先,从加固的部位来说,可以分为从现有楼板上面加固和从现有楼板下面加固。从现有楼板上面加固,主要是针对上部钢筋不足比较有效;从现有楼板下加固,主要是对下部钢筋不足比较有效。当然,对具体工程来说现浇钢筋混凝土楼板多少钱一平方,不一定下部弯矩承载力不足就一定要加强下部,加强上部同样可以达到加固的目的,甚至有的工程会上、下部同时加固。

所以,在加固设计之初,一定要请专业人员到现场观测做出判定,不然不合理的加固方法不止多花钱,效果还会适得其反。

其次,根据目前行业情况,混凝土楼板加固方法一般有:新增混凝土层、粘钢加固、粘碳纤维布加固和新增梁加固。其中粘钢和粘碳纤维施工专业性都比较强,而新增梁会改变板的弯矩分布,有可能要同时增加上部钢筋。

现在,主要讲一下新增混凝土层加固。首先,如果楼板是房间四周的裂缝较多,或者下部钢筋本身良好,只是配筋量稍微不足或混凝土强度不足,那么基本都可以从现有楼板上部增加不小于40mm的新混凝土层来加固,理论上新增厚度越大越好,但是同时新增混凝土层的重量越重,要考虑现有楼板钢筋和基础的承载力。

现浇钢筋混凝土楼板多少钱一平方_现浇楼板一平方多少钢筋_现浇钢筋混凝土楼板多少钱一方

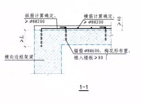
施工方法大致如下:

修补大裂缝。

必要时施工期间在楼下支撑楼板。

凿毛现有混凝土楼面,必要时打去上部保护层兼职赚钱,清理板面。

铺设上部负筋和中间钢筋网(8@200),必要时负筋通长,并把负筋植入梁或墙内;植连接筋,一般为8mm直径,间距600mm交错布置,必要时加密。

老混凝土界面剂处理,浇筑新混凝土(一般新混凝土采用高一级无收缩细石混凝土)。

现浇钢筋混凝土楼板多少钱一平方_现浇钢筋混凝土楼板多少钱一方_现浇楼板一平方多少钢筋

具体也可以参照国标图集G311-1:

现浇钢筋混凝土楼板多少钱一方_现浇钢筋混凝土楼板多少钱一平方_现浇楼板一平方多少钢筋

现浇楼板一平方多少钢筋_现浇钢筋混凝土楼板多少钱一平方_现浇钢筋混凝土楼板多少钱一方

另外,板底加固可以采用板下支模,现有楼板开洞用自密实混凝土浇筑,或者直接喷射浇筑。一般来讲,使用粘钢法和粘碳纤维法对板底加固比较方便。进行楼板加固现浇钢筋混凝土楼板多少钱一平方,一定要找具备加固资质的专业加固公司进行加固设计及施工,采取对应的加固方法以便确保房屋使用安全。

现浇钢筋混凝土楼板多少钱一平方_现浇钢筋混凝土楼板多少钱一方_现浇楼板一平方多少钢筋

广州大鹏加固公司具有结构补强、建筑纠偏与平移、地基基础、防水保温防腐等专业施工资质,13年专注解决建筑物疑难杂症问题,13年行业经验,超3000项工程实例。主要承接建筑物结构补强、基础加固、纠偏托换、防水补漏、桥梁加固、基坑及边坡支护、植筋及软基处理等设计与承包施工。了解更多加固技术,欢迎来电咨询:020-82000172!

现浇钢筋混凝土楼板多少钱一方_现浇楼板一平方多少钢筋_现浇钢筋混凝土楼板多少钱一平方

发表回复

您的电子邮箱地址不会被公开。 必填项已用*标注