文案:yiyi酱 校对:shasha 出品:安阳信息网房产频道

九月,安阳市自然资源和规划局网站发布了一系列城市发展规划。其中包含有医疗配套:公共医疗服务中心、医院扩建项目安阳规划,还有学校扩建项目,以及住宅项目批后公告,一起看看吧。

DB7-10-15-2地块批后公告

安阳规划局2025规划图_安阳规划局_安阳规划

规划地块DB7-10-15-2位于文峰区,文明大道与盖津路交叉口东北,规划总用地3.84公顷。图中红色部分为医疗卫生用地,用地面积2.85公顷,容积率<2.00安阳规划,建筑密度≤35%,建筑高度<40米,绿地率≥35%;绿色部分为公园绿地,用地面积0.23公顷,绿地率≥65%。

安阳规划局_安阳规划_安阳规划局2025规划图

本地块建设内容包括疾病预防控制中心、妇幼保健所、应急周转中心等。地块位于旧城+新东片区,以本土地域特色与现代建筑结合演绎的建筑风格为主,应有利于患者生理、心理健康首码项目,地块内建筑形体应该考虑在京港澳高速上的视觉完整性,禁止形成密集的高层簇群,以免强化片区之间的景观分割。配套设施要求设计修建防空地下室。

规划地块建筑为文峰区公共卫生服务中心,地处京港澳生态廊道,周边许多在售项目陆续交付,入住率逐步提高,医疗配套对于生活品质有着不可替代的作用,能为生活带来更多的健康保障。

安阳市第五人民医院批后公告

安阳规划_安阳规划局_安阳规划局2025规划图

项目名称:安阳市第五人民医院隔离病房楼建设项目新建隔离病房楼2

建设单位:安阳市第五人民医院

批准号:建字第410506202200016(建筑)号

公告期限:建设项目规划核实合格后为止

该项目位于安阳市龙安区梅东路与文明大道交叉口东北角,建设规模5654.59平方米。

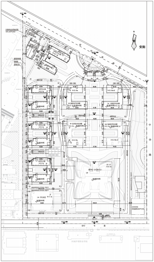
河南护理职业学院扩建项目

安阳规划局_安阳规划局2025规划图_安阳规划

项目名称:河南护理职业学院扩建项目(1-4#学生公寓、5#后勤服务用房、6#康复治疗实训楼、7#口腔医学实训楼、8#北门卫)

建设单位:河南护理职业学院

批准号:建字第410502202200023(建筑)号

公告期限:建设项目规划核实合格后为止

安阳规划局_安阳规划_安阳规划局2025规划图

该项目位于中华路与KF47号路交叉口西北,建设规模79978.43平方米。

花园里二期项目批后公告

安阳规划_安阳规划局2025规划图_安阳规划局

项目名称:龙安区花园里二期住宅小区6#、7#、8#、9#

建设单位:安阳市永升房地产开发有限公司

批准号:建字第410506202200015(建筑)号

公告期限:建设项目规划核实合格后为止

安阳规划局_安阳规划局2025规划图_安阳规划

该项目位于龙安区钢城路与金华街交叉口东北,建设规模28112.13平方米。

咨询电话:400-0369-069转66367

项目地址:龙安区钢花路与金华街交叉口西北角

展示中心:钢花路与祥云街交叉口东北角

识别二维码

发表回复

您的电子邮箱地址不会被公开。 必填项已用*标注